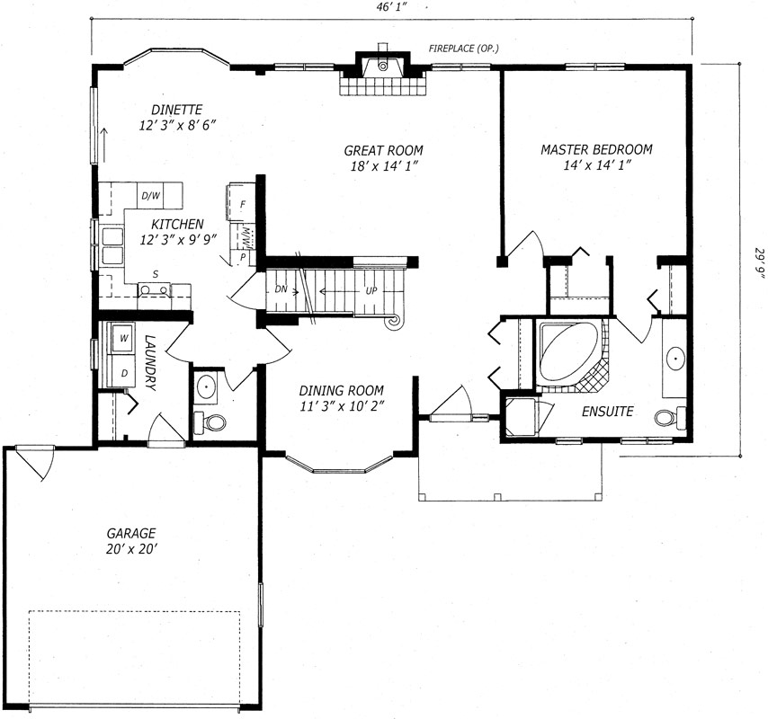
Glengarry