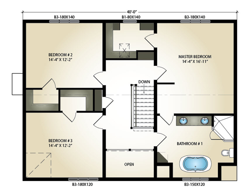
Heritage House