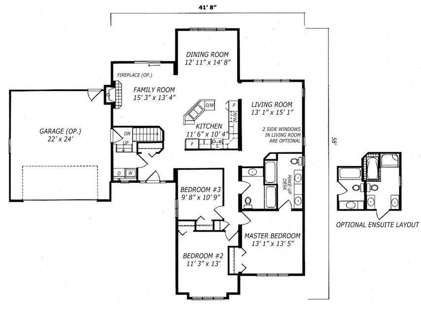
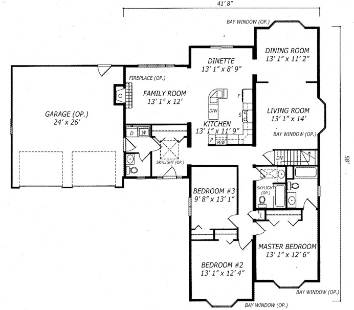
Carleton II